Дом на продажу в г. Одесса | АН «Авалон»

Северная улица, Лески ID 64752

150 000 $

Обзор

  • 1807749 м²Общая площадь
  • 5 сотокПлоащадь участка
  • СмежныйТип участка
  • 4Комнаты
  • 2Этаж
Описание

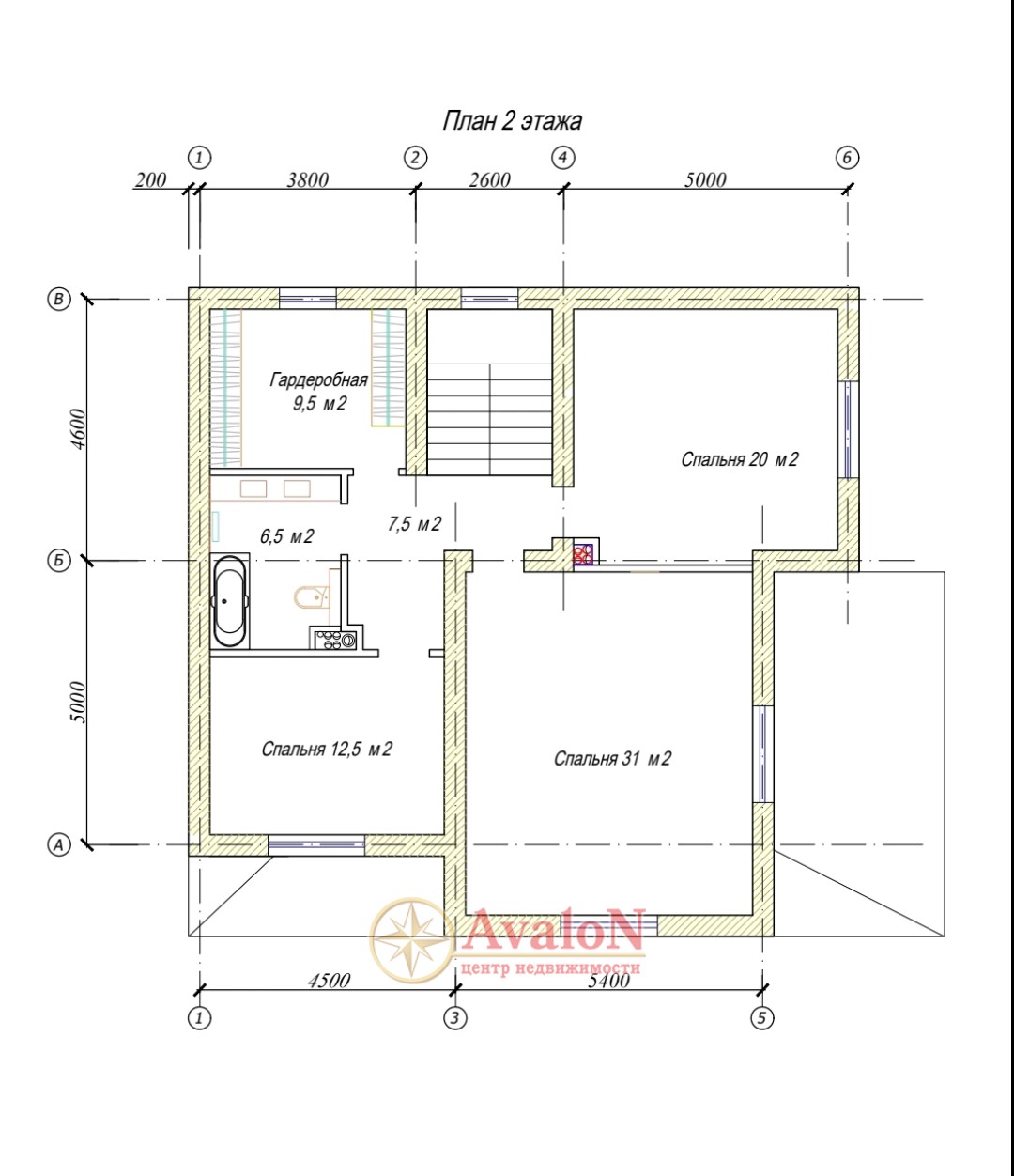
В продаже 2х этажный дом в Лесках Жилмассив Хуторок, 500 м от Сахарова. Дом построен согласно всех строительных норм. Участок- 5 соток (30х16,7). Общая площадь вместе с подвалом - 270 м2 (1 этаж- 92 м2; 2 этаж- 88 м2; подвал - 92 м2). Фундамент- монолитная жб фундаментная плита 300мм. Стены подвала- блоки ФБС, выполнена наплавляемая гидроизоляция + утепление экструд. Пенопластом 100мм. Перекрытия подвала, 1 эт. и 2 эт. - монолитные жб плиты. Несущие стены- газоблок Aeroc D400 375мм. Перегородки- кирпич 120мм. Кровля- утепленная, битумная черепица Katepal. Окна- Rehau Synego, мульфункциональные стеклопакеты+ триплекс. Отопление- выполнена разводка, теплый пол + радиаторы (низкотемпературное отопление). Стяжка- армированная стяжка по утеплителю. Штукатурка- высококачественная гипсовая штукатурка стен. Коммуникации- вода заведена на участок, электрика- 380В, 3 фазы, 17 кВт. Заведены на участок. Дом строился для себя. На 1 этаже кухня -гостиная, кабинет, санузел. На втором этаже 3 спальни, гардеробная, ванная комната. Под отделочные работы.

Детали

  • Электричество:
  • Вода:
  • Канализация:
  • Населенный пункт:Лески
  • Улица:Северная улица
  • Материал:Пеноблоки
 Контакты
РиелторПосторонко Оксана Григорьевна